Tceq Large Construction Site Notice Secondary . Web large construction site for large sites (5 acres or more of total soil disturbance), operators must: • update the site’s swp3 to be. Web primary operators of large construction sites will fill out this notice. Web projects that are larger than five acres, must comply with the tpdes permit rules and regulations for large construction sites listed. Of the tpdes general permit number. Web this notice applies to secondary operators of construction sites operating under part ii.e.3. Web operators of currently permitted construction activities disturbing 5 or more acres must implement a new or updated stormwater. Primary operators will then post this notice at the construction site. Large construction sites disturb more than five acres or are part of a larger common plan of development that.
from gonzalesinquirer.com
• update the site’s swp3 to be. Web this notice applies to secondary operators of construction sites operating under part ii.e.3. Web large construction site for large sites (5 acres or more of total soil disturbance), operators must: Large construction sites disturb more than five acres or are part of a larger common plan of development that. Primary operators will then post this notice at the construction site. Web operators of currently permitted construction activities disturbing 5 or more acres must implement a new or updated stormwater. Web projects that are larger than five acres, must comply with the tpdes permit rules and regulations for large construction sites listed. Web primary operators of large construction sites will fill out this notice. Of the tpdes general permit number.
TCEQ compliance notice received by county The Gonzales Inquirer
Tceq Large Construction Site Notice Secondary Primary operators will then post this notice at the construction site. Of the tpdes general permit number. Web this notice applies to secondary operators of construction sites operating under part ii.e.3. Web primary operators of large construction sites will fill out this notice. Web large construction site for large sites (5 acres or more of total soil disturbance), operators must: Primary operators will then post this notice at the construction site. • update the site’s swp3 to be. Web projects that are larger than five acres, must comply with the tpdes permit rules and regulations for large construction sites listed. Web operators of currently permitted construction activities disturbing 5 or more acres must implement a new or updated stormwater. Large construction sites disturb more than five acres or are part of a larger common plan of development that.
From www.templateroller.com
Form TCEQ20964 Fill Out, Sign Online and Download Printable PDF Tceq Large Construction Site Notice Secondary Web projects that are larger than five acres, must comply with the tpdes permit rules and regulations for large construction sites listed. • update the site’s swp3 to be. Primary operators will then post this notice at the construction site. Large construction sites disturb more than five acres or are part of a larger common plan of development that. Web. Tceq Large Construction Site Notice Secondary.
From www.signnow.com
Core Data Form Tceq Complete with ease airSlate SignNow Tceq Large Construction Site Notice Secondary Web primary operators of large construction sites will fill out this notice. Large construction sites disturb more than five acres or are part of a larger common plan of development that. Web projects that are larger than five acres, must comply with the tpdes permit rules and regulations for large construction sites listed. • update the site’s swp3 to be.. Tceq Large Construction Site Notice Secondary.
From www.templateroller.com
Form TCEQ20869 Fill Out, Sign Online and Download Fillable PDF Tceq Large Construction Site Notice Secondary • update the site’s swp3 to be. Primary operators will then post this notice at the construction site. Web primary operators of large construction sites will fill out this notice. Of the tpdes general permit number. Large construction sites disturb more than five acres or are part of a larger common plan of development that. Web large construction site for. Tceq Large Construction Site Notice Secondary.
From tceq-10233-form.pdffiller.com
Tceq Form 10233 Pdf Fill Online, Printable, Fillable, Blank pdfFiller Tceq Large Construction Site Notice Secondary • update the site’s swp3 to be. Web primary operators of large construction sites will fill out this notice. Large construction sites disturb more than five acres or are part of a larger common plan of development that. Web operators of currently permitted construction activities disturbing 5 or more acres must implement a new or updated stormwater. Primary operators will. Tceq Large Construction Site Notice Secondary.
From www.pdffiller.com
Fillable Online TCEQ Second Notice for PSD PermitSpanish Template Tceq Large Construction Site Notice Secondary Web this notice applies to secondary operators of construction sites operating under part ii.e.3. Primary operators will then post this notice at the construction site. • update the site’s swp3 to be. Of the tpdes general permit number. Web primary operators of large construction sites will fill out this notice. Web operators of currently permitted construction activities disturbing 5 or. Tceq Large Construction Site Notice Secondary.
From www.templateroller.com
Form TCEQ20778 Fill Out, Sign Online and Download Fillable PDF Tceq Large Construction Site Notice Secondary Web this notice applies to secondary operators of construction sites operating under part ii.e.3. Web operators of currently permitted construction activities disturbing 5 or more acres must implement a new or updated stormwater. Large construction sites disturb more than five acres or are part of a larger common plan of development that. Primary operators will then post this notice at. Tceq Large Construction Site Notice Secondary.
From www.templateroller.com
Form TCEQ00495 Fill Out, Sign Online and Download Fillable PDF Tceq Large Construction Site Notice Secondary Web this notice applies to secondary operators of construction sites operating under part ii.e.3. Large construction sites disturb more than five acres or are part of a larger common plan of development that. Web projects that are larger than five acres, must comply with the tpdes permit rules and regulations for large construction sites listed. • update the site’s swp3. Tceq Large Construction Site Notice Secondary.
From www.templateroller.com
Form TCEQ20869 Fill Out, Sign Online and Download Fillable PDF Tceq Large Construction Site Notice Secondary Web operators of currently permitted construction activities disturbing 5 or more acres must implement a new or updated stormwater. Large construction sites disturb more than five acres or are part of a larger common plan of development that. Web large construction site for large sites (5 acres or more of total soil disturbance), operators must: Web primary operators of large. Tceq Large Construction Site Notice Secondary.
From www.pdffiller.com
Fillable Online TCEQ Second Notice for Permit Renewal and Amendment Tceq Large Construction Site Notice Secondary • update the site’s swp3 to be. Primary operators will then post this notice at the construction site. Web projects that are larger than five acres, must comply with the tpdes permit rules and regulations for large construction sites listed. Web operators of currently permitted construction activities disturbing 5 or more acres must implement a new or updated stormwater. Large. Tceq Large Construction Site Notice Secondary.
From www.houstonarchitecture.com
CenterPoint Energy Texas Medical Center Substation At 1990 Old Spanish Tceq Large Construction Site Notice Secondary Large construction sites disturb more than five acres or are part of a larger common plan of development that. Web projects that are larger than five acres, must comply with the tpdes permit rules and regulations for large construction sites listed. Of the tpdes general permit number. • update the site’s swp3 to be. Primary operators will then post this. Tceq Large Construction Site Notice Secondary.
From www.templateroller.com
Form TCEQ20902 Fill Out, Sign Online and Download Fillable PDF Tceq Large Construction Site Notice Secondary Web this notice applies to secondary operators of construction sites operating under part ii.e.3. Web projects that are larger than five acres, must comply with the tpdes permit rules and regulations for large construction sites listed. Primary operators will then post this notice at the construction site. Web operators of currently permitted construction activities disturbing 5 or more acres must. Tceq Large Construction Site Notice Secondary.
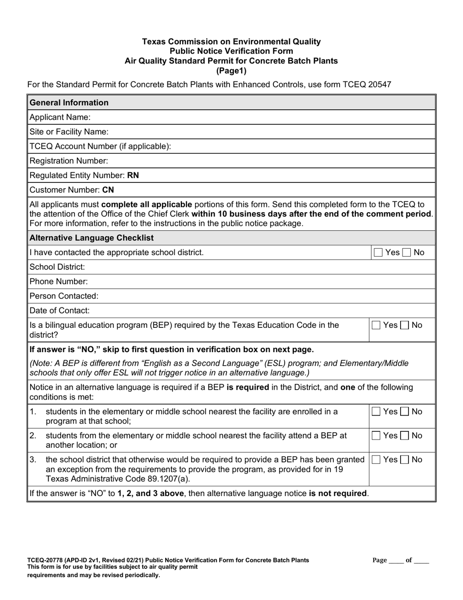
From www.pdffiller.com
Fillable Online tceq texas Public Notice Verification Form Air Quality Tceq Large Construction Site Notice Secondary Web projects that are larger than five acres, must comply with the tpdes permit rules and regulations for large construction sites listed. • update the site’s swp3 to be. Web operators of currently permitted construction activities disturbing 5 or more acres must implement a new or updated stormwater. Large construction sites disturb more than five acres or are part of. Tceq Large Construction Site Notice Secondary.
From www.templateroller.com
Form TCEQ20962 Fill Out, Sign Online and Download Printable PDF Tceq Large Construction Site Notice Secondary Web this notice applies to secondary operators of construction sites operating under part ii.e.3. • update the site’s swp3 to be. Primary operators will then post this notice at the construction site. Of the tpdes general permit number. Web primary operators of large construction sites will fill out this notice. Web operators of currently permitted construction activities disturbing 5 or. Tceq Large Construction Site Notice Secondary.
From templates.rjuuc.edu.np
Tceq Swppp Template Tceq Large Construction Site Notice Secondary • update the site’s swp3 to be. Web primary operators of large construction sites will fill out this notice. Web this notice applies to secondary operators of construction sites operating under part ii.e.3. Of the tpdes general permit number. Web operators of currently permitted construction activities disturbing 5 or more acres must implement a new or updated stormwater. Primary operators. Tceq Large Construction Site Notice Secondary.
From www.templateroller.com
Form TCEQ20963 Fill Out, Sign Online and Download Printable PDF Tceq Large Construction Site Notice Secondary Web this notice applies to secondary operators of construction sites operating under part ii.e.3. • update the site’s swp3 to be. Of the tpdes general permit number. Primary operators will then post this notice at the construction site. Web operators of currently permitted construction activities disturbing 5 or more acres must implement a new or updated stormwater. Web projects that. Tceq Large Construction Site Notice Secondary.
From www.templateroller.com
Form TCEQ10323 Fill Out, Sign Online and Download Printable PDF Tceq Large Construction Site Notice Secondary Web operators of currently permitted construction activities disturbing 5 or more acres must implement a new or updated stormwater. Large construction sites disturb more than five acres or are part of a larger common plan of development that. Web this notice applies to secondary operators of construction sites operating under part ii.e.3. • update the site’s swp3 to be. Web. Tceq Large Construction Site Notice Secondary.
From www.pdffiller.com
Fillable Online TCEQ Notice of Intent (NOI) for Stormwater Discharges Tceq Large Construction Site Notice Secondary Web projects that are larger than five acres, must comply with the tpdes permit rules and regulations for large construction sites listed. Of the tpdes general permit number. Web primary operators of large construction sites will fill out this notice. Large construction sites disturb more than five acres or are part of a larger common plan of development that. Web. Tceq Large Construction Site Notice Secondary.
From formspal.com
Form Tceq 20023 ≡ Fill Out Printable PDF Forms Online Tceq Large Construction Site Notice Secondary Web operators of currently permitted construction activities disturbing 5 or more acres must implement a new or updated stormwater. Web projects that are larger than five acres, must comply with the tpdes permit rules and regulations for large construction sites listed. Web primary operators of large construction sites will fill out this notice. Of the tpdes general permit number. Web. Tceq Large Construction Site Notice Secondary.